Sasbach am Kaiserstuhl:
Projektierte, familienfreundliche DHH mit Dachterrasse
Objekt-Nr.: 280a

Attraktives Neubau-Doppelhäuser

Löchleackerstraße - Bauplätze linke Seite

Grundstück Richtung Norden

Gartenansicht

Erdgeschoss-1

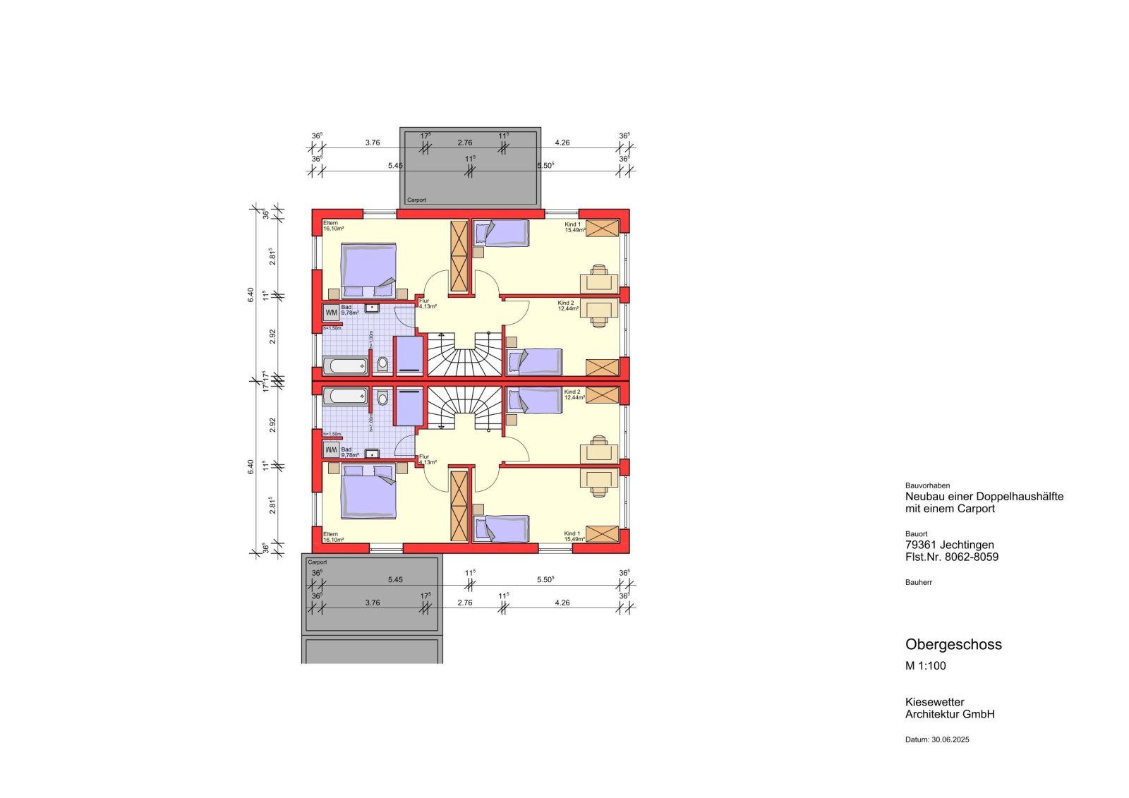
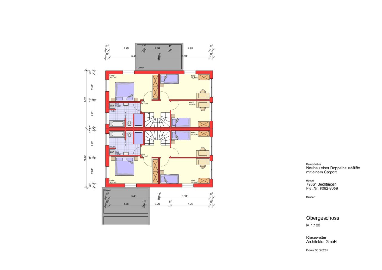
Obergeschoss-1

Dachgeschoss-1

Hauseingang

Schnitt AA-1

Grundstück Richtung Süden










Preis:
564.000 €
Wohnfläche ca.:
170 m²
Grundstück ca.:
297 m²
Zimmeranzahl:
5,5
Wissenswertes:
- projektierte Doppelhaushälfte mit Dachterrasse
- attraktives, ruhiges Grundstück, ca. 297 qm
- KFW 55 mit PV-Anlage und Pufferspeicher
- 5 1/2 Zimmer mit ca. 170 qm Wohnfläche
- offene Küche zum großzügigem Wohn-/Esszimmer
- Gäste-WC mit Fenster
- 3 Schlafzimmer im Obergeschoss
- modernes Tageslichtbad mit Wanne u. bodentiefer Dusche
- attraktives Studio mit gemütlicher Dachterrasse
- Carport und PKW-Stellplatz am Haus
- Preisangaben für Haus Nr. 3 für den Neubau einer nichtunterkellerten Doppelhaushälfte in 2 1/2-geschossiger Massivbauweise mit einem Pultdach
Grundstück ca. 98.000 €
DHH gemäß Angebot ca. 383.000 €
Carport gemäß Angebot ca. 15.000 €
PV Anlage inkl. Speicher ca. 15.000 €
Material Eigenleistung
Bodenbel. und Maler ca. 11.000 €
Baunebenkosten n. Aufst, ca. 42.000 €
Voraussichtliche GESAMTKOSTEN ca. 564.000 €…
- weitere Eigenleistungen, Änderungen und Sonderwünsche machbar
Gerne unterbreiten wir Ihnen das detaillierte Angebot von Haus 3.
Lassen Sie sich einfach beraten - gerne sind wir für Sie da!
Haustyp: Doppelhaushälfte
Etagenanzahl: 3
Kubatur: 664 m³
Provisionspflichtig: nein
Nutzfläche ca.: 16,94 m²
Küche: offen
Bad: Dusche, Wanne, Fenster
Anzahl Schlafzimmer: 4
Terrasse: 2
Gäste-WC: ja
Garten: ja
Keller: nein
Umgebung: ruhige Gegend
Anzahl der Parkflächen: 1 x Carport
Ausblick: Fernblick
Qualität der Ausstattung: gehoben
Baujahr: 2026
Bauphase: Haus in Planung (projektiert)
Verfügbar ab: 2026
Bodenbelag: Fertigparkett, Fliesen
Zustand: Haus in Planung (projektiert)
Energieklasse: BEA
Heizung: Fußboden
Befeuerungsart: Wärmepumpe
Energietyp: KFW55
Energieausweistyp: Energieausweis liegt zur Besichtigung vor
Für den Käufer fallen keine Vermittlungsgebühren an.
Die von uns gemachten Informationen beruhen auf Angaben des Verkäufers bzw. der Verkäuferin. Für die Richtigkeit und Vollständigkeit der Angaben kann keine Gewähr bzw. Haftung übernommen werden. Ein Zwischenverkauf und Irrtümer sind vorbehalten.
AUF WUNSCH empfehlen wir Ihnen Finanzierungsexperten.
Wir weisen auf unsere Allgemeinen Geschäftsbedingungen hin. Durch weitere Inanspruchnahme unserer Leistungen erklären Sie die Kenntnis und Ihr Einverständnis.
Das könnte Ihnen auch gefallen
4-Familienhaus in Gundelfingen
Freistehendes Einfam.-Haus in Bestlage!
Denkmalgeschütztes Juwel in Ettenheim
Firma - KAY ZIMMERMANN Projektmanagement & Immobilien GmbH
Alte Bundesstraße19a
79194 Gundelfingen
Büro: 0761 2089790















































































