Ettenheim:
Denkmalgeschütztes Juwel in Ettenheim
Objekt-Nr.: 277

Außenansicht

Grundriss UG

Keller 1

Keller 2

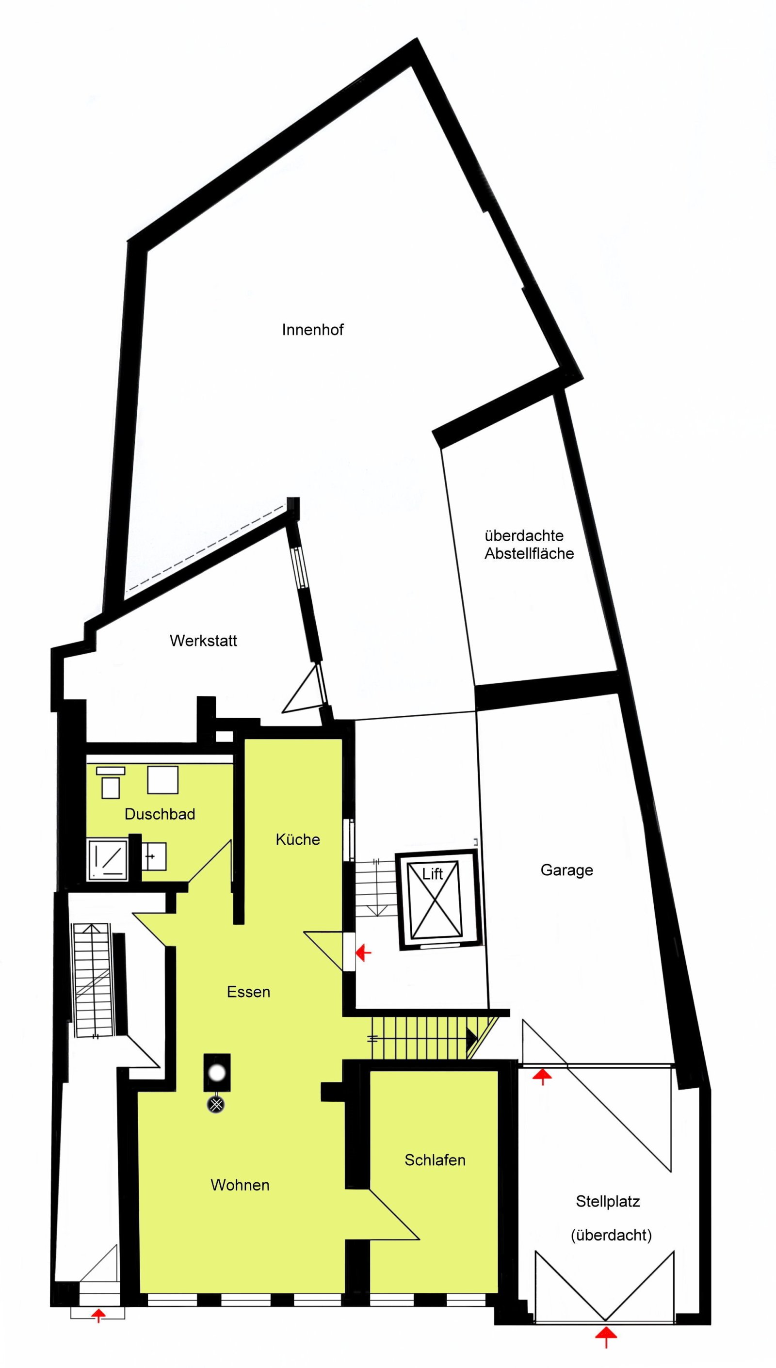
Grundriss EG W1

Wohn-, Essbereich Mais.-Whg.

Treppe Mais.-Whg. 1

Obergeschoss W1

Duschbad, Whg. 1

Obergeschoss Whg. 2

Dachgeschoss W3

Essbereich, DG

Küche, DG

Wohnen 3

Treppe zum Dachspitz

Wohnen 1, DG

Wohnen 2, DG

Tageslichtbad

mod. Wannenbad m. Fenster

Duschbad, DG

Schlafen, DG

Balkon, DG

Dachspitz W3

Dachspitz

Schlafen, Dachspitz

Aufzug 1

Aufzug 2

Blick vom Innenhof nach oben

Altstadt 1

Altstadt 2

Prinzengarten































Preis:
991.800 €
Wohnfläche ca.:
342,42 m²
Grundstück ca.:
303 m²
Zimmeranzahl:
12
Wissenswertes:
- denkmalgeschütztes MFH im historischen Stadtkern
- Bj. 1811 / 1878 - letzte Modernisierung 2022/23
- Grundstück: Flurstück 242/1 mit 303 qm
- 3 WE mit insgesamt ca. 342,42 qm Wohnfläche
- UG: Keller und Hausanschlüsse
- EG: 2 überdachte PKW-Stellplätze, Lager, Werkstatt und
idyllischer Hofgarten
- EG/OG: 5,5 Zi.-Maisonette Wohnung W1 mit 133,97 qm
- OG: zusätzlich 2,5 Zi.-Wohnung W2 mit 75,28 qm
- DG/DS: 4 Zi.-Wohnung W3 mit Galerie und 133,17 qm
Letzte Modernisierungen:
Dach 2017 / 2022, Gauben 2022, großteils Fenster 2023
Gasheizung 2023, Elektroinst. 2022 ertüchtigt
2022 Aufzug vom Innenhof bis Dachgeschoss
Mit Rücksicht auf die Privatsphäre der derzeitigen Mieter haben wir weitestgehend auf Innenfotos von W1 und W2 verzichtet.
- Bezugsfreie Übernahme ab April 2027 möglich
Als Mehrgenerationenhaus, Zinshaus oder zum Wohnen & Arbeiten bestens geeignet!
Kaufpreis: 991.800,- € zzgl. 3,57% Vermittlungsprovision
Haustyp: Mehrfamilienhaus
Etagenanzahl: 4
Provisionspflichtig: ja
Provision: 3,57 % vom KP inkl. der ges. MwSt.
Küche: Einbauküche
Anzahl Schlafzimmer: 7
Anzahl Badezimmer: 5
Balkon: 3
Gäste-WC: ja
Garten: ja
Kamin: ja
Keller: teil unterkellert
Klimaanlage: ja
Fahrstuhl: ja
Denkmalschutzobjekt: ja
Anzahl der Parkflächen: 2 x Carport
Letzte Modernisierung/ Sanierung: 2022
Qualität der Ausstattung: normal
Baujahr: 1811
Verfügbar ab: 01.04.2027
Zustand: gepflegt
Heizung: Zentralheizung
Befeuerungsart: Gas
Energieausweistyp: Dieses Gebäude unterliegt nicht den Anforderungen der GEG
Bei Abschluss eines Kaufvertrages wird eine Vermittlungs-/ Nachweisprovision in Höhe von 3,57 % inklusive 19 % Mehrwertsteuer auf den Kaufpreis vom Käufer fällig.
Die von uns gemachten Informationen beruhen auf Angaben des Verkäufers bzw. der Verkäuferin. Für die Richtigkeit und Vollständigkeit der Angaben kann keine Gewähr bzw. Haftung übernommen werden. Ein Zwischenverkauf und Irrtümer sind vorbehalten.
Wir weisen auf unsere Allgemeinen Geschäftsbedingungen hin. Durch weitere Inanspruchnahme unserer Leistungen erklären Sie die Kenntnis und Ihr Einverständnis.
Das könnte Ihnen auch gefallen
4-Familienhaus in Gundelfingen
Dreifamilienhaus mit XXL-Garten!
Firma - KAY ZIMMERMANN Projektmanagement & Immobilien GmbH
Alte Bundesstraße19a
79194 Gundelfingen
Büro: 0761 2089790




















































