Gundelfingen:
Wohntraum nahe der Ortsmitte
Objekt-Nr.: 276

Aussenansicht

Eingangsbereich

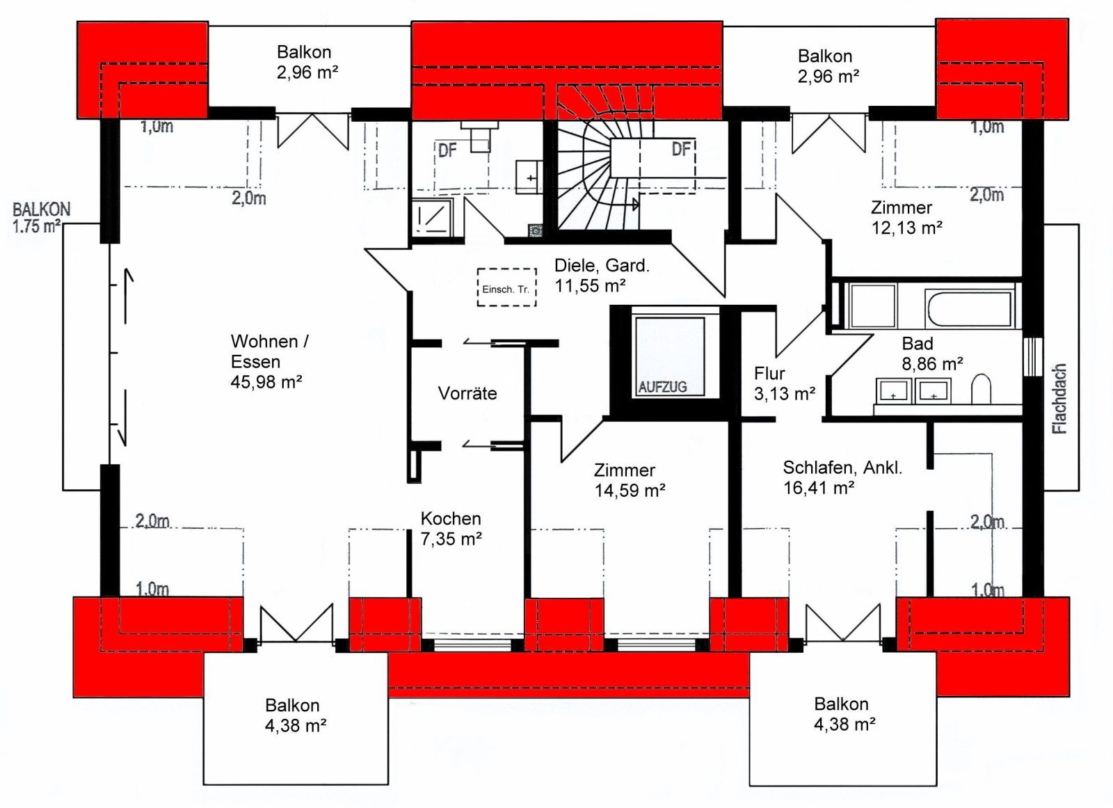
Grundriss

Wohnbereich

Essbereich

Wohnen

Gäste-WC

Gäste-WC mit Dusche

Küche 1

Küche 2

Tageslichtbad m. Wanne

Blick 1 vom West-Balkon

Blick 2

Blick 3

Aussenansicht Ost















Preis:
802.000 €
Wohnfläche ca.:
144 m²
Zimmeranzahl:
4
Wissenswertes:
- gepflegtes MFH mit nur 5 Wohneinheiten, Baujahr 2010
- VA, 53kWh/(m²*a), Kl. B, Bj. 2009, Gas und Solaranlage für BW
- gute Lage nahe der Ortsmitte
- 4 Zimmer mit sehr guter Raumaufteilung
- Innen ca. 128 qm zzgl. 5 Balkone mit insg. ca. 33 qm = 144,5 qm Wfl. n. II. BV
- hochwertige Bauausführung und Ausstattung
- Fussbodenheizung
- Videogegensprechanlage, teils el. Rollläden u.v.m.
- 2 TG auf Straßenniveau
Highlights:
moderner Aufzug direkt in die Wohnung
5 attraktive Balkone
heller und großzügiger Wohn- und Essbereich (46 qm)
Master-Bedroom mit Ankleide und Tageslichtbad
separates Gäste-Duschbad
HW-Raum innerhalb der Wohnung
zeitlose Einbauküche
großer Stauraum im darüberliegenden Speicher
großes Kellerabteil (10,5 qm)
- gemeinschaftl. Fahrrad- u. Trockenraum
- seit 04/2014 an solventes Paar vermietet
- monatl. Kaltmiete 1.503,- € zzgl. 467,- NK-Vorauszahlung
- Hausgeld-Abr. 2024 Ges. = 7920,- € (mtl. Mieter 410,- VM 130,- RL 120,-)…
- gute Rücklagen vorhanden 2024 (MEA ca. 14.400,- €)
KP W5 = 802.000,- € + TG1 = 25.000,- € + TG6 = 20.000,- €
KP Gesamt = 847.000,- € (zzgl. 3,57 % Courtage, inkl. MwSt.)
Die attraktive Gemeinde Gundelfingen liegt ca. 6 km nördlich von Freiburg, und ist mit über 11.000 Einwohnern einer der größeren Orte im Landkreis Breisgau-Hochschwarzwald.
Gundelfingen verfügt über eine sehr gute Infrastruktur, alle Geschäfte des täglichen Lebens finden Sie hier. Die neue Ortsmitte mit über 50 Geschäften, sozialer Infrastruktur sowie zahlreichen Arztpraxen ist ein attraktiver Anziehungspunkt.
Durch die günstige Lage mit guter Verkehrsanbindung erreichen Sie Freiburg mit Bus, Bahn oder Auto in wenigen Minuten.
Weitere Informationen finden Sie unter www.gundelfingen.de
Wohnungstyp: Dachgeschoss
Etage: 3
Etagenanzahl: 3
Provisionspflichtig: ja
Provision: 3,57 % vom KP inkl. der ges. MwSt.
Nutzfläche ca.: 10,50 m²
Küche: Einbauküche
Bad: Dusche, Wanne, Fenster
Anzahl Schlafzimmer: 3
Anzahl Badezimmer: 2
Balkon: 5
Dachboden: ja
Keller: Abstellraum
Fahrstuhl: ja
vermietet: ja
Anzahl der Parkflächen: 2 x Tiefgarage, pro Stück 22.500 €
Qualität der Ausstattung: gehoben
Baujahr: 2010
Bodenbelag: Fliesen, Parkett
Zustand: gepflegt
Energieverb. Warmwasser enthalten: ja
Energieklasse: B
Heizung: Zentralheizung
Befeuerungsart: Gas
Energieausweistyp: Verbrauchsausweis - gültig vom 10.01.2019 bis 10.01.2029
Energieeffizienz-Klasse: B
Baujahr laut Energieausweis: 2009
Bei Abschluss eines Kaufvertrages wird eine Vermittlungs-/ Nachweisprovision in Höhe von 3,57 % inklusive 19 % Mehrwertsteuer auf den Kaufpreis vom Käufer fällig.
Die von uns gemachten Informationen beruhen auf Angaben des Verkäufers bzw. der Verkäuferin. Für die Richtigkeit und Vollständigkeit der Angaben kann keine Gewähr bzw. Haftung übernommen werden. Ein Zwischenverkauf und Irrtümer sind vorbehalten.
Wir weisen auf unsere Allgemeinen Geschäftsbedingungen hin. Durch weitere Inanspruchnahme unserer Leistungen erklären Sie die Kenntnis und Ihr Einverständnis.
Das könnte Ihnen auch gefallen
Stadtnah wohnen an der Dreisam !
Wohnen mit Dreisam-Blick
Bezugsfreie 3 Zimmerwohnung in attraktiver Lage!
Firma - KAY ZIMMERMANN Projektmanagement & Immobilien GmbH
Alte Bundesstraße19a
79194 Gundelfingen
Büro: 0761 2089790

























































