Ettenheim:
Reiterhof in idyllischer Lage
Objekt-Nr.: 142

Bild bearb

Außenansicht

Eingangsbereich

Stallungen

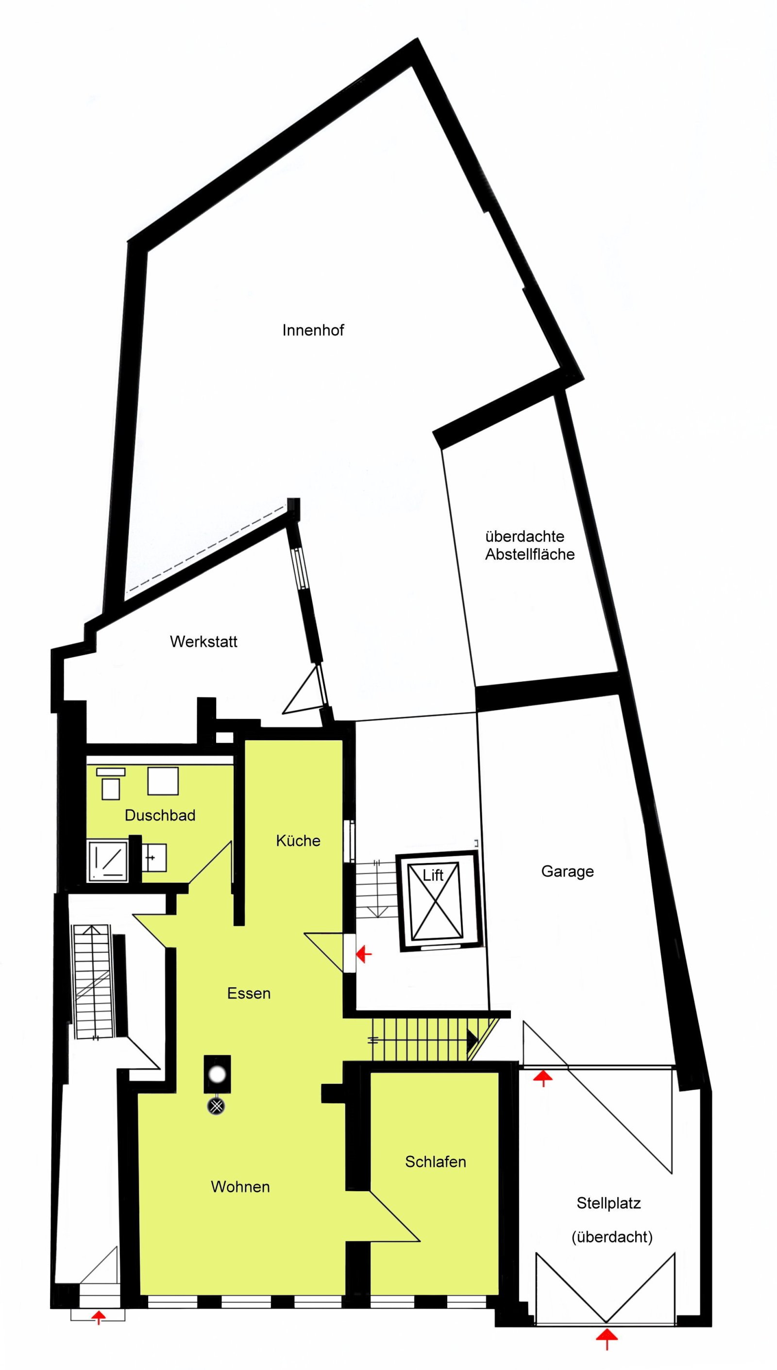
Lageplan





Gesamtfläche ca.:
270 m²
Hauptfläche ca.:
270 m²
Preis:
1.250.000 €
Wissenswertes:
Idyllische ruhige Alleinlage im Außenbereich
WOHNEN
- Landhaus mit 2 Wohneinheiten Bj. 1971
- zusätzl. separater Gästebereich im UG mit eigenem Zugang
- seit 1997 laufend modernisiert, zuletzt Fenster 2014, Dach 2016
- Energie-VA, 86,5 kWh/m²*a, Öl, Bj. 92, Kl. C
- UG Einliegerbereich ca. 53 qm
EG-Whg. ca. 93 qm + Terrasse
DG-Whg. ca. 125 qm
Gesamt > 270 qm
- schöner Hausgarten
- großer Carport
- großzügige Nebenflächen
- Grundstück 7.107 qm (Hof- und Gebäudefläche 2.527 qm zzgl. Wiese 4.580 qm)
Grundstück ca.: 7.107 m²
Provisionspflichtig: ja
Provision: 3,57% inkl. der ges. MwSt.
Letzte Modernisierung/ Sanierung: 2016
Qualität der Ausstattung: normal
Baujahr: 1971
Etagenanzahl: 2
Keller: ja
Zustand: gepflegt
Bei Abschluss eines Kaufvertrages wird eine Vermittlungs-/ Nachweisprovision in Höhe von 3,57 % inklusive 19 % Mehrwertsteuer auf den Kaufpreis vom Käufer fällig.
Die von uns gemachten Informationen beruhen auf Angaben des Verkäufers bzw. der Verkäuferin. Für die Richtigkeit und Vollständigkeit der Angaben kann keine Gewähr bzw. Haftung übernommen werden. Ein Zwischenverkauf und Irrtümer sind vorbehalten.
Wir weisen auf unsere Allgemeinen Geschäftsbedingungen hin. Durch weitere Inanspruchnahme unserer Leistungen erklären Sie die Kenntnis und Ihr Einverständnis.
Das könnte Ihnen auch gefallen
Denkmalgeschütztes Juwel in Ettenheim
Denkmalgeschütztes Juwel in Ettenheim
Firma - KAY ZIMMERMANN Projektmanagement & Immobilien GmbH
Alte Bundesstraße19a
79194 Gundelfingen
Büro: 0761 2089790













































































